FOR SALE - UPCOMING NEWLY BUILD - 3-BEDROOM EN-SUITE HOUSE WITH FLATLET IN ELISENHEIM, WINDHOEK

N$3,890,000
Property Details

Modern Family Home with Flatlet in Elisenheim, Windhoek

(COMPLETION DATE END OF MAY 2026)

This contemporary home, situated in the highly sought-after Elisenheim Estate, offers modern design, comfortable living, and excellent additional accommodation. The property is currently under construction and scheduled for completion in March 2026.

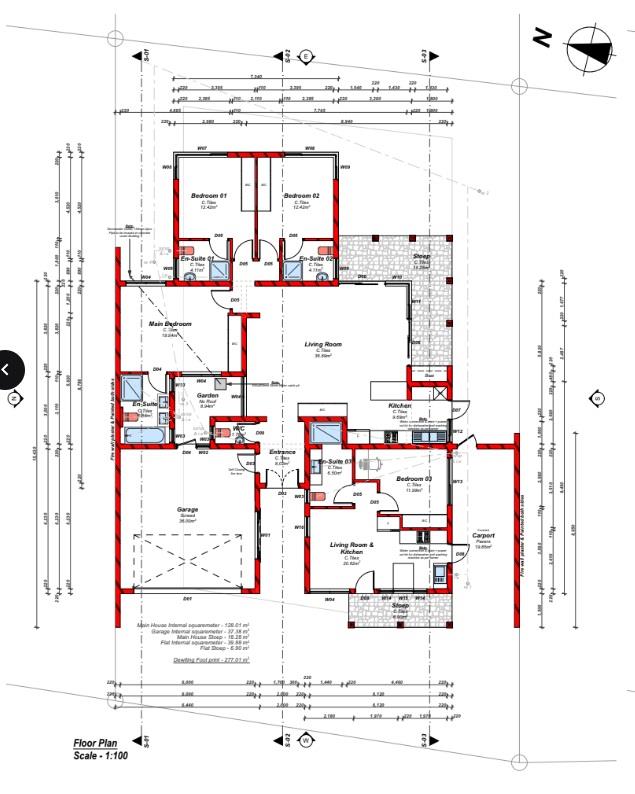
Size Breakdown:

  • Main House (Internal): 128.01 m2
  • Double Garage (Internal): 37.38 m2
  • Main House Stoep: 18.28 m2
  • Flatlet (Internal): 39.88 m2
  • Flatlet Stoep: 6.90 m2
  • Total Dwelling Footprint: 277.01 m2

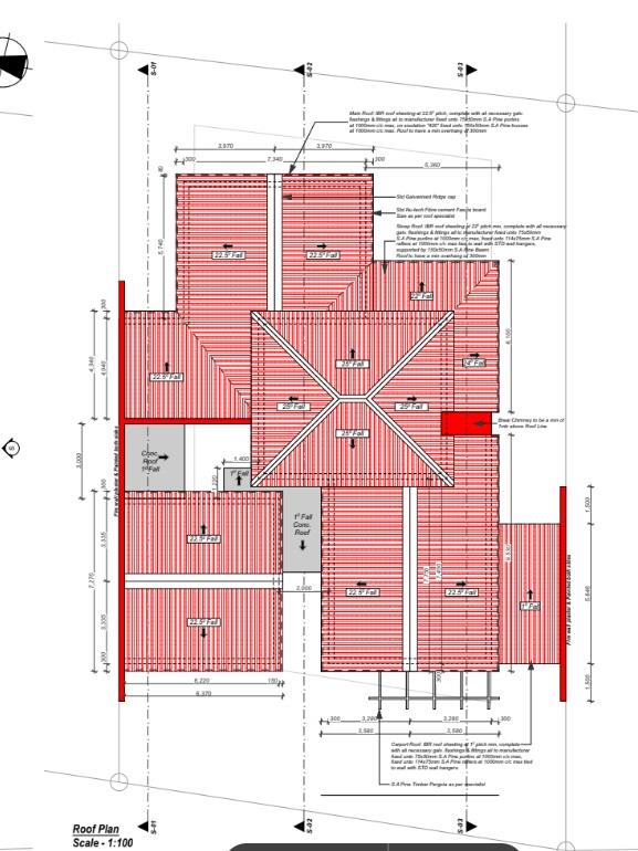
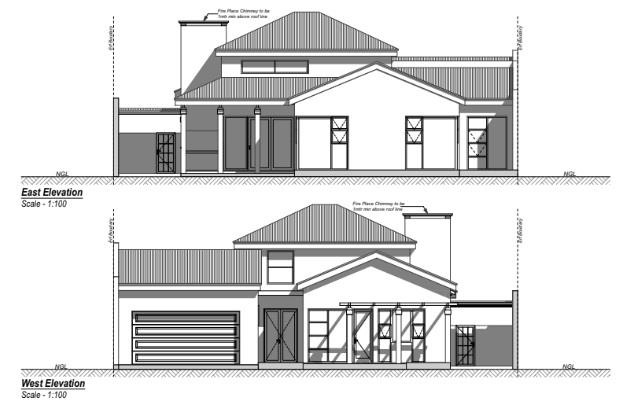
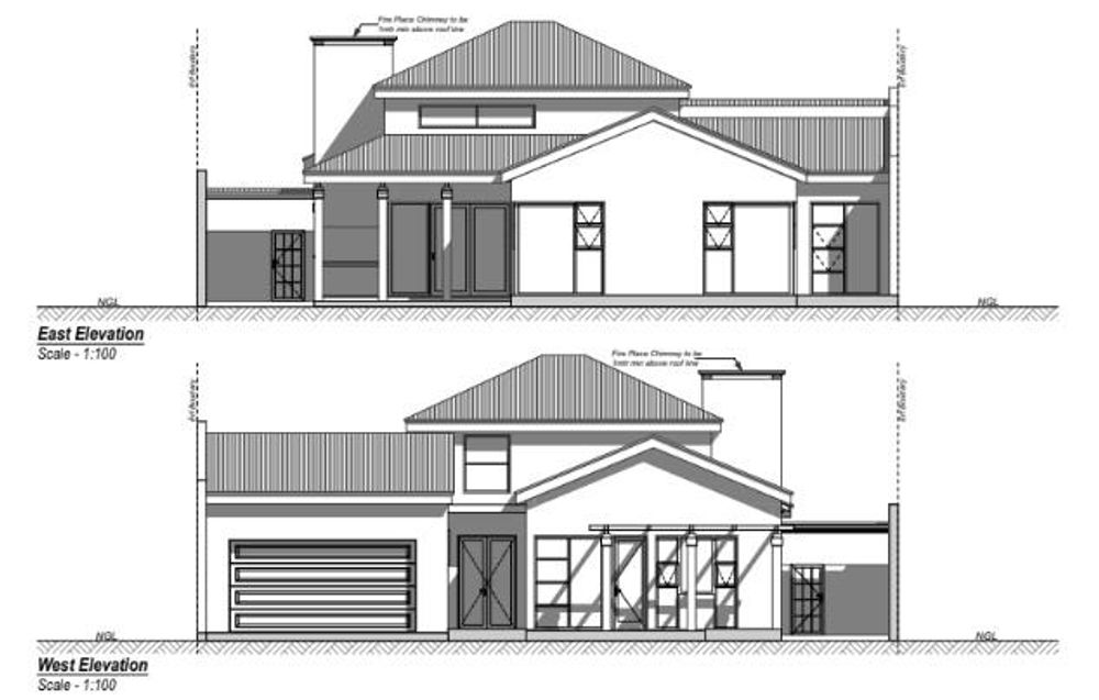
Main House Features:

  • 3 spacious bedrooms, all en-suite
  • Guest toilet for visitors
  • Open-plan lounge and kitchen, ideal for family living and entertaining
  • Indoor garden area, perfect for herbs or decorative planting, enhancing natural light and ambience
  • Outdoor braai area, ideal for relaxed entertaining
  • Double garage with direct access

Flatlet Features:

  • Self-contained unit with en-suite bedroom
  • Open-plan living area and kitchen
  • Ideal for extended family, guests, or rental income

Additional Highlights:

  • Located in a secure, well-managed estate
  • Modern architectural design with thoughtful layout
  • Excellent investment opportunity
  • Ideal for families seeking space, privacy, and lifestyle flexibility

This home offers stylish estate living in a peaceful environment, making it an outstanding opportunity for both homeowners and investors..

Property Features
Property Type
House
Bedrooms
3
Bathrooms
4
Garages
1
Land Size
537m²
Living Area
1
Location
Make an enquiry
Interested in this property? Please fill in your details below, and we will contact you as soon as possible.
By clicking on "submit" you agree to our privacy policy.
Property Alerts
Receive email alerts for properties matching your criteria.