UPCOMING WAREHOUSE DEVELOPMENT IN INDUSTRIAL SWAKOPMUND, NAMIBIA

N$2,965,000
Property Details

Exciting New Warehouse Development in Swakopmund Industrial Area!

Be among the first to secure your space in this prime development.

Located in a sought-after section of the industrial area, on an erf measuring 6,428 m2

A total of 16 warehouse units are available in various sizes and price ranges

Construction will be carried out in phases, ensuring each purchased unit is completed and delivered as a fully finished warehouse. Buyers can invest with confidence, knowing their warehouse will be completed as promised.

The first 5 sectional title units are now available at a special early-bird price!

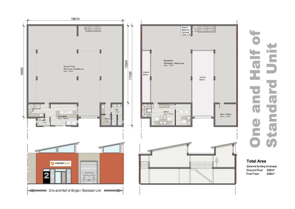
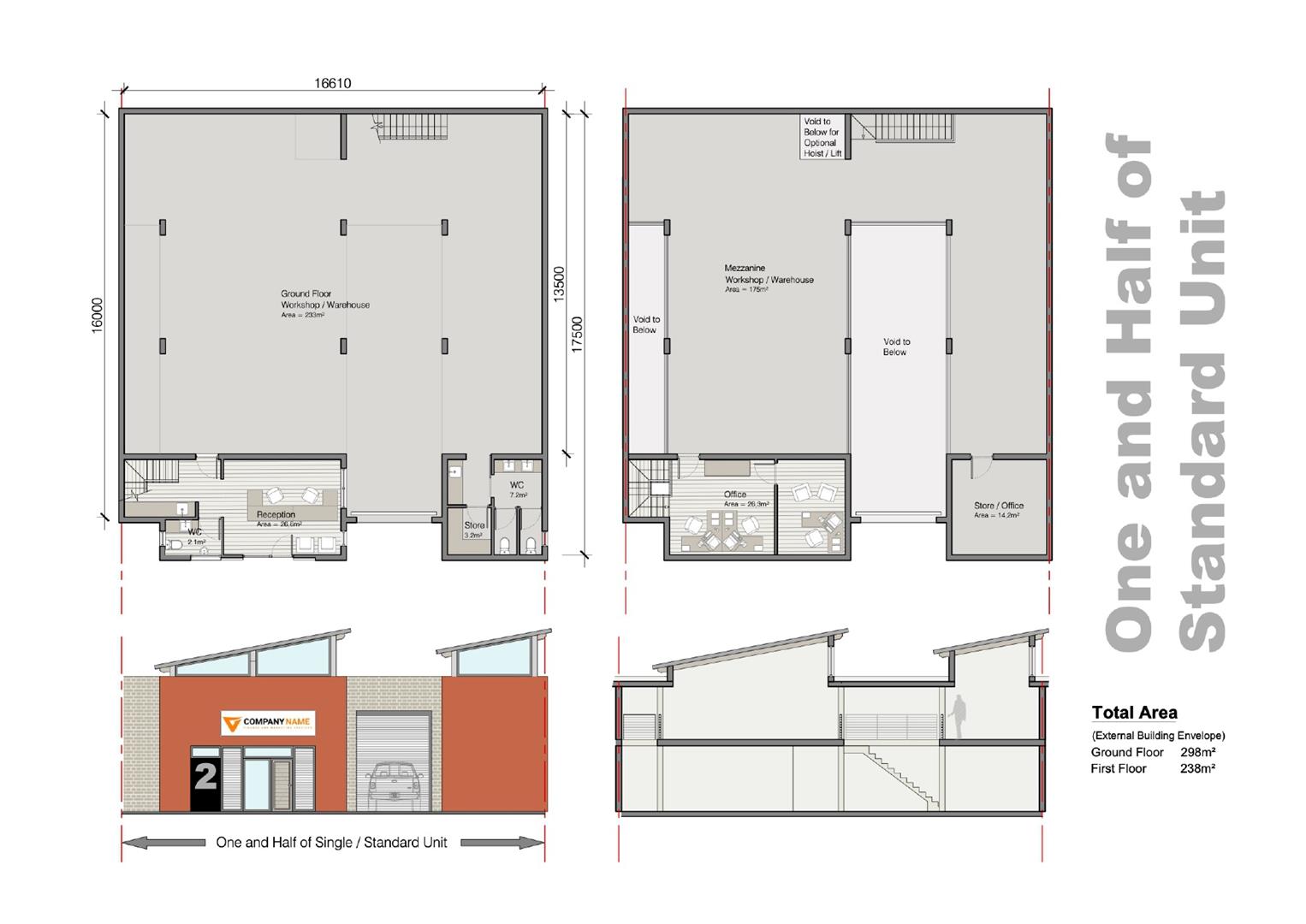
Double-Storey Warehouse Units (Sections 1–8, 11, 14 & 16)

Each of these units will feature a practical and modern layout designed for both business operations and storage needs:

Ground Floor: Reception area, WC, kitchenette, workers’ ablutions, and a spacious warehouse section.

First Floor: Two offices and a generous mezzanine storage area.

This design ensures a functional balance between administrative spaces and efficient storage capacity.

Warehouse Unit:

  • 1- Single front unit, 333 m2, N$3 050 000
  • 2- Single unit, 333 m2, N$2,965,000
  • 3- Single unit, 333 m2, N$2,965,000
  • 4- Single unit, 333 m2, N$2,965,000
  • 5- Single unit, 333 m2, N$2,965,000

To ensure transparency and peace of mind, the warehouse development offers a clear phase payment structure tailored for buyers: 10% upon signing of the purchase agreement, 30% once the building contractor commences on site, 30% at first-floor height, a further 25% at roof height, and the final 5% on completion. All buyer funds are securely managed and administered through Weder, Kauta & Hoveka Attorneys in Swakopmund, guaranteeing professional oversight and safeguarding your investment throughout the building process.

Reserve your unit today and take advantage of this unique opportunity!

Property Features
Property Type
Industrial
Land Size
6,428m²
Location
Make an enquiry
Interested in this property? Please fill in your details below, and we will contact you as soon as possible.
By clicking on "submit" you agree to our privacy policy.
Property Alerts
Receive email alerts for properties matching your criteria.