MODERN TOWNHOUSES WITH A DIFFERENCE, COMING SOON, KRAMERSDORF, SWAKOPMUND

N$2,950,000
Property Details

A New Way of Living in Swakopmund

Price: N$ 2,950,000

All Identical in Size, Layout & Finishes

Discover Urban Living, a boutique collection of 11 architecturally designed townhouses, crafted for comfort, style, and effortless coastal living. With clean modern lines, premium finishes, and generous indoor–outdoor flow, these homes offer an elevated lifestyle in one of Swakopmund’s most desirable residential areas.

  • Airbnb-Friendly Investment

Urban Living has been designed with flexibility in mind and is short-term letting / Airbnb friendly, making it ideal for investors seeking strong rental potential, holiday-letting income, or dual-use living in Swakopmund’s thriving tourism market.

  • About the Development

Urban Living comprises 11 identical townhouses, each measuring 191.62 m2 and built with a focus on quality, practicality, and design consistency. All units share the same size, layout, finishes, and selling price, making this development a secure and straightforward investment.

  • Construction is set to begin March 2026, with completion anticipated 12 months later.

Designed for Modern Swakopmund Living

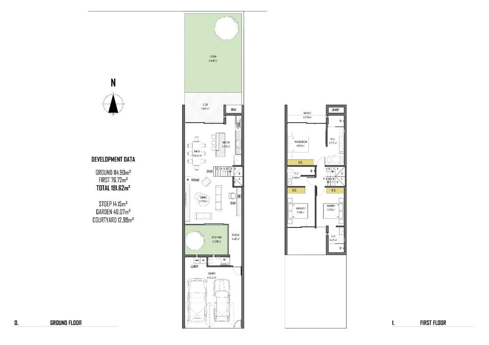
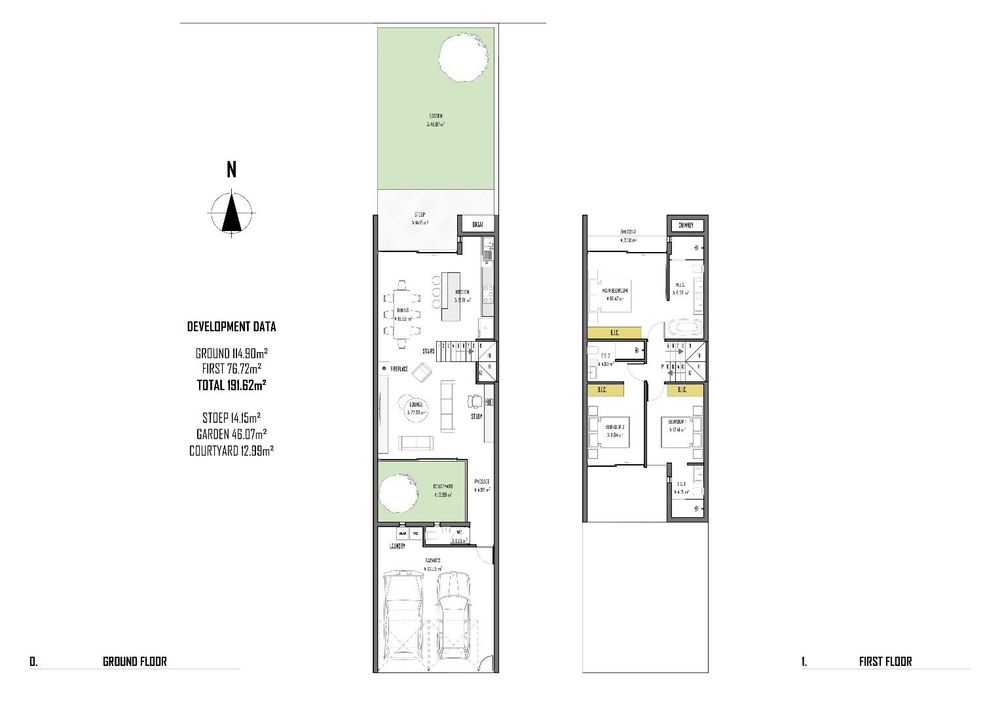
Ground Floor

  • Spacious open-plan kitchen, dining, and lounge
  • Indoor fireplace for cozy evenings
  • Flow to the stoep with outdoor braai
  • Private garden and courtyard
  • Guest WC
  • Double automated garage with laundry area
  • Direct street access to every unit

First Floor

  • Three well-sized bedrooms with built-in cupboards
  • All three bedrooms feature en-suite bathrooms
  • Main bedroom includes a private balcony

Premium Finishes — As per Architectural Specifications

  • Bamboo flooring
  • Exposed concrete ceilings (sealed)
  • Charcoal aluminium windows & doors
  • White stone countertops
  • Built-in melamine cabinetry
  • Exposed concrete staircase
  • Black sanitary fittings
  • Oven & hob included
  • Tiled showers
  • Points for washing machine / tumble dryer

Development Footprint

  • Total Unit Size: 191.62 m2
  • Ground Floor: 114.90 m2
  • First Floor: 76.72 m2
  • Stoep: 14.15 m2
  • Garden: 46.07 m2
  • Courtyard: 12.99 m2

Units Available

  • 8 units remaining

Why Urban Living?

✔ Airbnb-friendly / short-term letting permitted

✔ All units identical — same size, layout & price

✔ Indoor fireplace + outdoor braai

✔ All bedrooms en-suite

✔ Direct street access — rare for townhouse living

✔ Low-maintenance, modern design

✔ Excellent investment, holiday-letting or lock-up-and-go opportunity

Secure your home today with a N$ 30,000 deposit.

Don’t miss out on this exclusive opportunity — Urban Living offers modern, functional, and beautifully designed homes in the heart of Swakopmund.

Property Features
Property Type
Townhouse
Bedrooms
3
Bathrooms
3
Garages
2
Floor Size
114.9m²
Land Size
191.62m²
Living Area
1
Study
1
Location
Make an enquiry
Interested in this property? Please fill in your details below, and we will contact you as soon as possible.
By clicking on "submit" you agree to our privacy policy.
Property Alerts
Receive email alerts for properties matching your criteria.
You may also be interested in these properties
N$ 3,780,000
Townhouse for sale in Swakopmund Central
Just Listed
Townhouse For Sale In Central Swakopmund, Namibia
Central Swakopmund living minutes from cafés, shops and the beach — versatile double-storey townhouse with approved business rights and a private courtyard with built-in BBQ. Four beds, two baths.
4
2
1
220m²
N$ 2,745,000
Townhouse for sale in Mile 4 Ext 1
Development
Newly Built Townhouses Near The Beach
Beachside coastal living in Swakopmund within walking distance to the sand, open-plan townhouses with private yards and modern kitchens — three bedrooms, two bathrooms, double garage.
3
2
2
200.2m²
N$ 3,512,000
Townhouse for sale in Vogelstrand
Just Listed
Dream 3-bedroom Townhouse For Sale In Vogelstrand, Swakopmund, Namibia
Coastal lifestyle with uninterrupted sea views and alfresco BBQ terrace, private courtyard garden and pet-friendly design; open-plan modern kitchen, three bedrooms, two bathrooms and double garage.
3
2
2